腐蚀环境下高性能钢构件及结构的力学性能研究
2019年06月04日 21:36         所属学院: []          点击:


附件5:

湖南省大学生研究性学习和创新性实验计划

项  目  申  报 

项目名称:      

  • 如果您无法在线浏览此 PDF 文件,则可以

  • 下载免费小巧的 福昕(Foxit) PDF 阅读器,安装后即可在线浏览  或

  • 下载免费的 Adobe Reader PDF 阅读器,安装后即可在线浏览  或

  • 下载此 PDF 文件

学校名称

香港六宝合典资料大全

学生姓名

学  号

专   业

性 别

入 学 年 份

王磊

201415020116

桥梁工程

2014

金晨

201408020611

桥梁工程

2014

户一名

201408020910

桥梁工程

2014

余文浩

201410010230

桥梁工程

2014

侯宣宣

201408020634

桥梁卓越

2014

指导教师

彭建新

职称

副教授

项目所属

一级学科

土木工程

项目科类(理科/文科)

理科

学生曾经参与科研的情况

王磊, 第十届全国大学生结构设计大赛特等奖;

      湖南省力学竞赛三等奖;

      湖南省工程模型大赛三等奖;

      香港六宝合典资料大全“鸿宇杯”结构设计大赛一等奖;

参与研究3D打印在土木工程中的应用。

余文浩,参与第八届全国大学生数学竞赛湖南省赛区预赛

       参与校科技立项国内真人秀节目本土化创新探析

      香港六宝合典资料大全第十届物理竞赛二等奖;校第六届工程地质知识竞赛二等奖

金晨, 香港六宝合典资料大全“鸿宇杯”结构设计大赛一等奖;校力学竞赛三等奖

户一名,香港六宝合典资料大全“鸿宇杯”结构设计大赛二等奖;

侯宣宣, 湖南省第五届结构设计竞赛二等奖;

      香港六宝合典资料大全“鸿宇杯”结构设计大赛一等奖。

指导教师承担科研课题情况

1、2015年1月至2019年12月,国家重点基础研究发展计划(973计划)项目“特大跨桥梁安全性设计与评估的基础理论研究[2015CB057700]”子课题负责人。

2、考虑模型信息更新复杂环境下RC桥梁随机损伤预测(51008037),2011.1~2013.12,国家自然科学青年基金,项目主持人。

3、多因素腐蚀下RC梁桥服役期时变性能随机分析(12JJ6050),2012.01~2014.12,湖南省自然科学基金项目,项目主持人。

4、维修加固后钢筋混凝土梁桥退化机理和时变可靠性评估(2014319825160),2014.01~2016.12,交通部应用基础主干学科研究项目,项目主持人。

5、自密实混凝土加固T型梁桥的退化机理及后继可靠度研究, 2015年1月-2017年1月,湖南省教育厅优秀青年项目,项目主持人。

6、氯离子在预应力混凝土中的渗透机理及其不确定性分析(2014M552127),2014年3月~2016年1月,中国博士后科学基金项目, 项目主持人。

7、RC梁桥维修加固后的退化机理和时变可靠性评估(2012FJ4124),2012.01~2013.12,湖南省科技计划项目,项目主持人。

8、氯盐环境下钢筋混凝土桥梁空间开裂比例预测,2010.7~2012.06,香港六宝合典资料大全湖南省桥梁与隧道工程重点学科创新基金,项目主持人。

项目研究和实验的目的、内容和要解决的主要问题

鉴于未来高性能钢的应用日趋广泛,自然工作状态下钢材易发生腐蚀,使得钢材的力学性能大打折扣,各国纷纷展开高性能钢材研究,相对而言我国高性能钢的研究及应用起步晚。在目前的高性能钢的研究方面,迄今的研究基本上集中在结构的安全性与适用性,而忽略了高性能钢的耐久性。高性能钢结构在腐蚀环境及不断增长的交通荷载等作用下,其抗力会降低,影响结构的安全性、适用性及耐久性。

本次实验的目的在于研究腐蚀钢梁的力学性能,通过自然喷雾腐蚀和电化学加速腐蚀两种不同腐蚀环境,分别对高性能钢构件和钢结构腐蚀,再通过做承载力实验,研究腐蚀钢荷载作用下的应力应变分布和变化。

本实验计划的主要内容是:

1)通过3D扫描技术,并利用计算机手段展现和分析研究钢梁的锈坑的形状孔径、蚀坑数目、及分布特征,翼缘腹板等蚀坑分布情况及规律等,统计结构初始质量,通电时间和锈蚀率,腐蚀速率等数据,建立两种锈蚀环境下的面积损失模型;

2)对比电化学加速腐蚀和自然喷雾腐蚀两种不同的手段,探究其对钢结构承载力能力退化的影响规律;

3)通过承载力试验,结合高性能钢的腐蚀特征,研究腐蚀环境下钢结构力学行为变化规律,建立承载力计算模型。

国内外研究现状和发展动态

1. 锈蚀钢结构的力学性能退化分析

目前已有不少学者致力于锈蚀钢结构的性能退化研究。徐善华等人对锈蚀H型钢进行了材料试验和偏心受压柱试验,分析了锈蚀钢材的力学性能指标的退化规律,建立了偏心受压钢柱的承载力模型并分析了截面塑性发展系数的退化规律。丁国清等人分析了几种典型钢的大气腐蚀情况,并进行了腐蚀预测,认为干燥、轻微腐蚀钢材的预测精度较差,严重腐蚀钢材的预测精度好。王皓等人通过对加速腐蚀钢板表面坑洞的形貌测量,利用新型weibull函数对锈坑平均深度随时间变化的规律进行了描述,提出了坑蚀截面损失率服从正态分布的观点,并进一步推导了钢板强度退化概率模型。叶继红等人对具有点蚀孔腐蚀特征的钢构件,依据周期喷雾复合试验数据,建立人工加速腐蚀试验和海洋大气条件下Q235钢构件腐蚀情况的转换关系,建立考虑点蚀影响的有限元构件模型,提出点蚀构件力学性能劣化分析的实用计算方法。

Beaulieu等人对加速腐蚀角钢进行受压试验,发现腐蚀不均匀导致试验值与规范计算值存在较大的偏差,对于有锈洞的角钢更为突出。Chen等人对五种土壤的应力腐蚀行为进行了探究,认为应力腐蚀敏感性是存在的,且呈逐渐降低的趋势。N.K.Tewary等人通过对高强度钢的腐蚀性能的显微镜下的形态得出了铁元素在3.5%氯化钠浸泡腐蚀中,钢的腐蚀速率随着时间的增加,得到了高强度钢筋的预防腐蚀的方法由此可见,大多数研究都集中在锈蚀钢受压柱的承载力退化以及锈坑平均深度与预测的研究,对锈蚀钢梁的研究较少,尤其是不同钢梁部位的腐蚀性能退化研究更少。对锈蚀钢材的力学性能的研究手段不够精确,而采用3D扫描描述锈坑分布的规律及截面形状的研究尚未谈到。

2. 高性能钢结构的稳定性及承载力分析

高性能钢结构以其优异的力学性能备受青睐,高性能钢的研究越来越受关注。王元清等人基于有限元所建立的残余应力模型,分析了各个参数对钢梁侧扭屈曲的影响,认为翼缘残余压应力峰值的影响最大。王春生等人对HPS485W工字钢进行了抗弯试验,认为腹板的屈曲强度和侧向支撑对高强受弯工字钢的破坏形态起主要作用。班慧勇等人基于实测的几何初始缺陷及残余应力,对工字型柱进行了整体稳定性分析,认为该类柱的稳定系数比设计值高。段兰通过对HPS485W的材料以及抗弯试验,研究了高性能钢的本构关系、抵抗疲劳裂纹拓展能力以及抗弯性能,基于有限元分析了简支条件下的强度以及稳定性能。薛加烨等人对高强钢轴心受压构件进行参数化分析,确定高强钢轴心受压构件整体稳定承载力的计算方法并参考《钢结构设计规范》(GB50017-2003)的设计公式,提出了基于佩里公式的柱子曲线或重新选择已有的柱子曲线。

Barth等人考虑受压翼缘宽厚比、腹板宽厚比以及腹板深度与受压翼缘宽度的比值,研究了材料以及几何参数对高性能工字钢梁的弯曲行为。Shi等人对高强钢进行了循环加载,研究了其本构模型以及结构反应,认为循环加载与单调加载下高强钢的结构反应是不同的,循环加载下高强钢的颈缩和断裂行为会提前发生。因此,目前关于高性能钢的研究主要集中在无损伤情况下的承载力、稳定性等方面,而对锈蚀损伤的高性能钢梁的研究较少。

参考文献:

【1】徐善华,邱斌。锈蚀H型钢偏心受压承载性能试验研究 实验力学,2013年8月536-541

【2】丁国清,张波。钢在自然环境中的大气腐蚀研究进展 装备环境工程,2010年6月42-48

【3】王皓,徐善华,苏磊。加速腐蚀环境下钢板表面坑蚀形貌统计规律,2016年2月23-29

【4】叶继红,申会谦,薛素铎。点蚀孔腐蚀钢构件力学性能劣化简化分析方法,哈尔滨工业大学学报 2016年12月

【5】王元清,高博,戴国庆,石永久。残余应力分布对焊接不锈钢工字型截面梁整体稳定性能的影响,工业建筑 2012年 51-54

【6】段兰,张亮,王春生,郑丽。高强度工字钢梁抗弯性能试验,长安大学学报(自然科学版)52-58

【7】施刚,班慧勇,Bijlaard F.S.K.,石永久,王元清。端部带约束的超高强度钢材受压构件整体稳定受力性能 土木工程学报 2011年10月 17-25

【8】段兰。高性能钢桥受力性能实验与设计方法研究 长安大学博士学位论文

【9】薛加烨。高强度钢材受压构件整体稳定性能试验研究 东南大学硕士学位论文

【10】N.K.Tewary,A.Kundu,R.Nandi,J.K.Saha,.S.K.Ghosh。Corrosion Science 2016年57-63

本项目学生有关的研究积累和已取得的成绩

1. 项目成员查阅相关文献,对高性能钢已有一定的了解;

2. 电化学加速腐蚀研究;

2.1 清洗H型钢表面

将高性能钢梁浸泡到浓度为12%(体积分数)的稀盐酸溶液10-15min,使用砂纸和钢刷擦洗,之后清水冲洗,石灰水中和,最后用清水洗干净,擦净后放入烘箱烘干四小时以上进行称重。

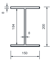
2.2设计电化学加速腐蚀试验梁的截面尺寸

试验梁的基本尺寸如图1、图2,试验采用分配梁进行双点加载,加载间距为0.4米,以研究高性能钢的剪跨区与纯弯段的力学性能。

 

图1 试验梁几何尺寸图

 

图2 试验梁截面尺寸图

2.3 设计试验构件及分组设计

本次试验共设计高性能钢梁15片,其中有6片梁在清洗完表面锈层后直接进行极限加载试验,作为后续研究中性盐雾腐蚀钢梁抗弯性能的对比组,剩余9片梁使用电化学加速腐蚀的方法分别腐蚀不同的时间,达到设计锈蚀率左右后,进行腐蚀钢梁抗弯性能研究。具体见表1。

表1  构件设计及分组表

钢梁编号

材料

净垮l(mm)

bf (mm)

tf(mm)

hw(mm)

tw(mm)

数量

设计锈蚀 率

L1、L2

HPS460MPA

1800

150

8

200

8

2

0

M1、M2

HPS550MPA

1800

150

8

200

8

2

0

H1、H2

HPS690MPA

1800

150

8

200

8

2

0

L3

HPS460MPA

1800

150

8

200

8

1

5%

M3

HPS550MPA

1800

150

8

200

8

1

5%

H3

HPS690MPA

1800

150

8

200

8

1

5%

L4

HPS460MPA

1800

150

8

200

8

1

10%

M4

HPS550MPA

1800

150

8

200

8

1

10%

H4

HPS690MPA

1800

150

8

200

8

1

10%

L5

HPS460MPA

1800

150

8

200

8

1

15%

M5

HPS550MPA

1800

150

8

200

8

1

15%

H5

HPS690MPA

1800

150

8

200

8

1

15%

 

2.4 电化学加速腐蚀试验实际进展

选用6片钢梁放入质量分数10%盐溶液中,使用直流稳压稳流电源进行电化学加速腐蚀(装置如图3所示),达到预设锈蚀时间后停止锈蚀,将钢梁浸泡在体积分数为12%的稀盐酸溶液中10-15min,使用砂纸和钢刷擦洗,之后清水冲洗,石灰水中和,最后用清水洗干净,待其干燥后进行称重。锈蚀不同时间后称得的质量见表2。锈蚀45d后不同材质钢梁的锈蚀产状见图4。

 

图3 电化学加速腐蚀示意图

表2  H型钢梁锈蚀不同时间后的质量        单位:Kg

材质

编号

初始质量m0

通电18d

通电45d

通电75d

锈蚀率

HPS460

L3

69.08

67.56

66.70

66.08

4.34%

HPS460

L4

69.96

68.44

67.68

66.94

4.32%

HPS550

M3

68.04

67.68

66.68

64.98

4.50%

HPS550

M4

67.78

66.64

65.68

63.96

5.63%

HPS690

H3

67.58

66.90

66.04

64.36

4.76%

HPS690

H4

66.60

65.96

65.00

63.34

4.89%

 

 

图4 电化学加速腐蚀45d后锈蚀产状图

从a)、b)两图可以看出,HPS460在锈蚀45d后出现较严重的坑蚀现象,锈坑呈蜂窝状分布。HPS550、HPS690出现较轻微坑蚀现象,多呈现点状和鳞片状分布,局部也出现较大面积的剥离腐蚀,如图e)右幅所示。

3.自然喷雾腐蚀试验设计与进展

该部分试验主要通过压缩空气、喷洒中性盐雾加速高性能钢腐蚀,型钢腐蚀后其强度和延性下降;腐蚀生成的物质不能提供强度,导致构件有效截面减损; 不均匀腐蚀形成腐蚀坑,引起应力集中。由于以上因素导致的承重钢构件承载力和延性下降,结构整体性能发生变化。该部分试验目前主要完成和正在开展的工作有以下几点。

3.1 清洗H型钢表面

将高性能钢梁浸泡到浓度为12%(体积分数)的稀盐酸溶液10-15min,使用砂纸和钢刷擦洗,之后清水冲洗,石灰水中和,最后再用清水洗干净,擦净后放入烘箱烘干四小时以上进行称重。

3.2 中性盐雾加速腐蚀试验

将6片不同材质的钢梁置于人工气候模拟室中,依据国家试验标准GB/T 10125-1997《人造气氛腐蚀试验箱—盐雾试验》的相关规定设定室内加速试验条件。测试溶液为15% NaCl,溶剂采用蒸馏水。试验时,将3组试件按照相同条件分批置于盐雾箱,设置箱内温度为35℃,饱和器温度为37℃,RH>95%,进气压为0.2~0.3MPa,压缩空气压力为0.07~0.17MPa,喷雾量为1.0~2.0ml /80cm2·h,pH 值为6.5~7.2。采用间隙喷雾,周期为8h,单周期内连续喷雾4h,停喷6h,停喷不加热。具体喷雾效果见图5。

   

图5  喷雾效果图

3.3 材料试验

该部分试验主要研究锈蚀高性能钢材料性能退化规律,选取与每种H型钢相同材质的81块钢片按照GB/T 228.1—2010《金属材料拉伸试验》加工成标准试件,考虑锈蚀类型、锈蚀程度的差异,运用试验研究和理论分析方法,研究锈蚀对钢材屈服强度、极限强度等基本力学性能的影响,为后续有限元建模提供可靠的本构关系,现阶段完成的主要工作是清洗试件表面,称量试件的初始质量。

称重过程中,使用游标卡尺分别取5个测点对每块钢板的厚度和平行长度区的宽度进行测量,具体操作步骤见图6。经过称重后得到每块钢板的初始质量,具体见表3。

              

a) 酸洗                 b) 干燥后称重              c)测量试件宽度

图6  试验步骤图

表3 标准试件初始质量

材质

编号

CL1-1

CL1-2

CL1-3

 

 

 

HPS460

初始质量(g)

338.77

311.20

311.79

编号

CL2-1

CL2-2

CL2-3

初始质量(g)

338.82

339.76

340.01

编号

CL3-1

CL3-2

CL3-3

初始质量(g)

340.56

339.25

339.00

编号

CL4-1

CL4-2

CL4-3

初始质量(g)

339.29

339.33

331.37

 

 

 

 

HPS550

 

 

 

 

编号

CM1-1

CM1-2

CM1-3

初始质量(g)

332.53

334.76

332.79

编号

CM2-1

CM2-2

CM2-3

初始质量(g)

331.83

336.15

334.32

编号

CM3-1

CM3-2

CM3-3

初始质量(g)

332.65

330.40

331.68

编号

CM4-1

CM4-2

CM4-3

初始质量(g)

331.56

333.37

335.26

 

 

 

 

HPS690

 

 

编号

CH1-1

CH1-2

CH1-3

初始质量(g)

312.92

311.92

311.21

编号

CH2-1

CH2-2

CH2-3

初始质量(g)

338.82

339.76

340.01

编号

CH3-1

CH3-2

CH3-3

初始质量(g)

340.56

339.25

339.00

编号

CH4-1

CH4-2

CH4-3

初始质量(g)

339.29

339.33

331.37

 

项目的技术路线及预期成果

技术路线:

围绕本申请项目的研究内容,采用模型试验方法对高性能钢材及结构的力学性能展开研究。基本路线如下:  

1. 室内加速腐蚀试验

高性能钢梁15片,其中有6片梁在清洗完表面锈层后直接进行极限加载试验,作为后续研究中性盐雾腐蚀钢梁抗弯性能的对比组,剩余9片梁使用电化学加速腐蚀的方法分别腐蚀不同的时间,达到设计锈蚀率左右后,进行腐蚀钢梁抗弯性能研究。

    试验采用电化学快速腐蚀方法进行高性能钢的快速锈蚀,使试件达到所控制的锈蚀率。实验在温度为20℃,湿度为65%的环境中进行。实验步骤如下:

按设计尺寸制作锈蚀槽,将连接工字钢的导线与恒定直流电源阳极相连接,而直流电源的阴极则与溶液中的不锈钢相连接,通过槽内5%的NaCl溶液形成回路,在电流作用下,阳极的试件发生锈蚀。

工字钢锈蚀量的控制:设需锈蚀的工字钢总重量为W,由阳极反应Fe-2e→Fe2+知,1mol铁的锈蚀,释放2mol的电子。因此,锈蚀W/M的铁(M为铁的摩尔质量),释放的电子数为2W/M,因此消耗电量为:Q=(2W/M)N*e。式中:N为阿佛加德罗常数,6.02×1023mol-1;设通电时电流强度为i,通电时间为t,则消耗电量为Q=i×t,即:i×t=(2W/M)Ne设锈蚀速度为V,由W=V×t,可得:V=(M×i)/(2N×e)因此,确定电流强度i,计算出锈蚀速度V后,由所需要锈蚀的钢重量W,可以算出需要通电的时间:

t=W/V=2W×Ne/M/i

锈蚀之前需要对构件进行称重,并利用3D扫描仪扫出其轮廓尺寸。锈蚀过程中,定时记录电流和加水,确保溶液覆盖锈蚀部位。锈蚀以后,将表面的浮锈清洗之后,再用12%的稀盐酸进一步清洗铁锈,随后用氢氧化钙中和,烘干以后称重并计算质量锈蚀率,随后再进行3D扫描仪扫出其锈后的轮廓尺寸。

2. 统计相关参数

基于室内加速腐蚀试验,统计腐蚀参数,运用3D扫描仪设计表格统计蚀坑数,蚀坑形状以及蚀坑的分布位置,翼缘腹板等蚀坑分布情况及规律等,统计结构初始质量,通电时间和锈蚀率,腐蚀速率等数据。

3.锈蚀梁抗弯承载力性能试验

锈蚀梁抗弯试验主要分为两个步骤进行,以分别研究其抗弯刚度退化以及极限承载力的退化。

3.1 腐蚀梁抗弯刚度(EI)退化研究试验

该部分试验完全在钢梁材料弹性范围内进行,对仪器精度要求很高、每一次测量和每一步操作都必须精准到位。首先用钢尺将钢梁上下翼缘板沿梁长方向进行20等分,等分距为100mm,沿宽度方向进行2等分找出对称轴,并用油性笔标出方便后续架设百分表,在跨中、集中荷载作用处、距离跨中50mm处设置5个百分表,编号D1D5,测量钢梁同一级荷载下不同位置处的挠度,其中D2D3除了用来测量挠度外,还可以组合起来用来测量钢梁处于弹塑性阶段的变形曲率,具体见后续介绍。这里需采用机械千斤顶加载,机械千斤顶相对于其他液压装置来说具有更好的稳定性在正式加载前必须对钢梁进行预加载,减少或消除支座位移,观察千分表运转是否正常。正式加载采用分级加载,加载上限初步设定为40kN,加载步长为每级2kN4kN不等,每加载一级后停1015min,待荷载稳定后进行读数,加载装置如图7所示。

 

图7  研究抗弯刚度退化加载简图       单位(mm)

 

3.2腐蚀梁极限抗弯承载力退化研究试验

进行完抗弯刚度退化研究试验后,百分表数量可适当减少至5个,分别放置在跨中、梁跨1/3处以及两支座点处,在分别距支座位置500mm设置侧向支撑防止加载过程中出现整体失稳现象,同时在支座位置处设置夹支钳住梁端防止扭转,预加载检测仪器设备正常后进行分级加载,每加载一级中间停1015min,待荷载稳定后进行读数,加载步长10KN20KN不等,试验梁开始进入塑性后连续加载直至荷载不能继续增加,达到极限荷载且随后荷载出现显著下降后停止加载,观察最终的破坏形态数据要连续采集。具体加载装置如图3.2所示。

 

图8  研究极限承载能力退化试验加载简图

4.利用3D扫描技术,分析钢板锈蚀特征,建立锈蚀特征与钢板的力学性能的相关模型

加速腐蚀高性能钢梁,建立不同腐蚀形式下高性能钢梁的抗力计算模型;分析腐蚀参数的概率分布特征,考虑随机参数的时变性及空间变异性,建立不同腐蚀形式下的抗力退化模型及时空可靠度计算模型。具体如下:

为了对锈蚀坑洞的分布规律、锈坑的形态以及截面尺寸进行准确地统计,香港六宝合典资料大全桥梁试验室购买了3D扫描仪,对锈蚀构件进行扫描以后,利用3D systems公司的geomagic软件进行3D数字化处理,以达到分析目的。

为了对比室内加速腐蚀以及通电腐蚀高性能钢结构的性能退化规律,利用香港六宝合典资料大全人工气候箱进行自然喷雾腐蚀模拟,利用电化学腐蚀技术对高性能钢进行通电加速腐蚀,本团队在两项技术的运用十分娴熟,已经进行过大量的钢筋混凝土梁,预应力腐蚀试验。

5.对比自然腐蚀与加速腐蚀以及未腐蚀试件,研究腐蚀影响

自然腐蚀主要是空气中的氧气和水与钢结构进行化学和电化学腐蚀引起,大气中的水汽层作为金属表层的电解离层,空气中的溶于水汽层的氧作为阴极,钢结构作为阳极一起形成腐蚀原电池。形成大气腐蚀电极反应。

加速腐蚀即以NaCl溶液为电解液,以一金属与钢结构共同形成腐蚀原电池,通电加速钢结构腐蚀。

相比传统的电解腐蚀试验,我们通过三种不同情况(自然腐蚀,加速腐蚀与未腐蚀)的腐蚀条件进行试验,且加速腐蚀采用9个不同浓度的电解质溶液(NaCl溶液)又形成一个相同试验不同浓度的对比试验,更加清晰鲜明的试验结果。最后进行加载荷载,得到不同试验方式的实验结果以及同种试验方式不同试验浓度的试验结果,研究腐蚀对高性能钢结构的力学性能影响。

预期成果:

通过团队成员努力,在3D扫描技术的支持下,利用计算机手段展现和分析研究在不同的腐蚀环境下的钢梁的锈坑的形状孔径、蚀坑数目、及分布特征,翼缘腹板等蚀坑分布情况及规律等,统计结构初始质量,通电时间和锈蚀率,腐蚀速率等数据,最终建立两种锈蚀环境下的面积损失模型。

对比电化学加速腐蚀和自然喷雾腐蚀两种不同的手段,揭示通电腐蚀与喷雾腐蚀环境下高性能钢梁结构性能的退化规律。

通过承载力试验,结合高性能钢的腐蚀特征,分析得出腐蚀环境下钢结构力学行为变化规律,成功建立承载力计算模型。

年度目标和工作内容(分年度写)

1. 2017年进度安排及目标

1)技术目标

做好高性能钢梁试验梁15片,其中有6片梁在清洗完表面锈层后直接进行极限加载试验,作为后续研究中性盐雾腐蚀钢梁抗弯性能的对比组,剩余9片梁使用电化学加速腐蚀的方法分别腐蚀不同的时间,达到设计锈蚀率左右后,进行腐蚀钢梁抗弯性能研究。对比自然喷雾腐蚀与通电加速腐蚀的腐蚀规律,揭示通电腐蚀与喷雾腐蚀的退化规律。

2)进度安排

2017年下半年,完成高性能钢片的加速腐蚀、自然喷雾腐蚀试验,完成5批不同环境浓度下高性能钢梁的加速腐蚀试验,为后期的理论分析提供基础;

统计腐蚀参数的概率分布特征,记录不同腐蚀方式、不同浓度环境下蚀坑的局部形态及分布特征,分析不同腐蚀形式下的高性能钢梁性能退化机理及失效模式。

2. 2018年进度安排及目标

1)技术目标

分析归纳试验结果,统计试验参数分布特征;根据不同的数学统计方法,对试验数据进行统计分析。在中文核心期刊发表论文1-2篇;完成终期报告及成果验收。

2)进度安排

l 2018年上半年,基于腐蚀高性能钢的锈蚀规律及相关参数的概率分布特征,分析数据,对比不同试验组与对照组的不同,并做好记录。为了得到蚀孔的统计规律,采用泊松概率分布函数求得腐蚀活性点出现个数的规律,再用古比极值统计第一类近似函数求得最深腐蚀孔深度的概率分布。得到统计规律,进行分析,完成报告。

指导教师意见

 

 

 

 

 

 

 

 

 

 

 

 

 

 

 

 

 

签字:               日期:               

注:本表栏空不够可另附纸张